

Selbstversorgerhaus mit Fußballplatz und Volleyballplatz zur Alleinbelegung im Bereich Fichtelgebirge, Frankenwald, Oberfranken, Bayern.
Nähere Ortschaften: Schwarzenbach/Saale, Hof, Bayreuth
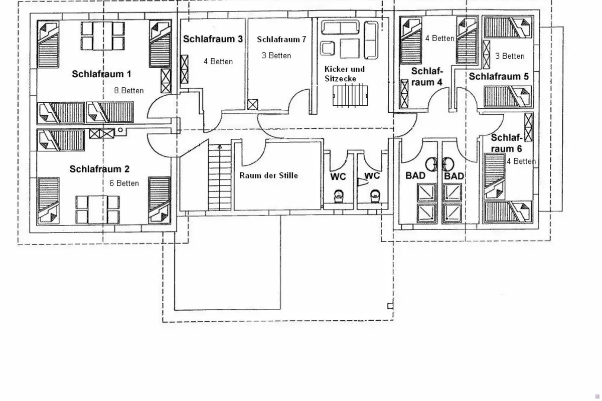
| Räume: | Meditationsraum |
|---|---|
| Einrichtungen: | Lagerfeuerstelle, Grillplatz, Terrasse |
| Geräte & Medien: | Internet, Einfache Tagungstechnik, WLAN, Beamer |
| Sport: | Volleyballfeld, Fußballplatz, Sportplatz, Spielplatz, Tischtennisplatz |
Nur Selbstverpflegung möglich.
Der Zeltplatz kann nur zusammen mit dem CVJM-Freizeitheim Schwarzenbach gemietet werden.
| Entfernungen: | Hallenbad (5,0 km), Freibad (5,0 km), See (4,0 km), Skilift (25,0 km), Loipe (8,0 km), Bahnhof (4,0 km) |
|---|
Vergleichspreise (unverbindlich):
| 13,50 € | Selbstverpflegung |
|---|
Die Gäste müssen mindestens für 20 Personen und 2 Nächte buchen.
Von Juni - August wird ein Preis von 16,50 EUR / Person bei mindestens 20 Personen fällig.
In der restlichen Zeit 13,50 EUR/Person bei mindestens 20 Personen.
Sehr idyllisches und niedliches Freizeitenheim! Das Gelände ist groß und wirklich schön - zum Glück hatten wir gutes Wetter und konnten oft draußen Zeit verbringen. Speiseraum, Küche und Gruppenraum sind mit allem Nötigen ausgestattet (sogar Beamer, Leinwand etc. vorhanden) und für unsere Gruppe (24 Jugendliche) auf jeden Fall ausreichend. Die Zimmer sind geräumig, in vielen gibt es noch eine kleine Sitzecke und mindestens einen Schrank. Die Bäder sind ebenfalls ausreichend, im Winter jedoch etwas kühl (warmes Wasser war nicht immer vorhanden) - Handtücher und Seife selbst mitbringen! In der Küche fehlt ein Wasserkocher, sonst ist alles vorhanden, was man sich als Koch oder Köchin so wünscht. Nebenan gibt es zur Zeit leider ein Hornissennest, das aber hoffentlich bald weggemacht wird (das ist wohl nicht so einfach aufgrund von Naturschutz
Danke. Ihre Bewertung wurde verschickt.
Danke. Ihre Belegungsanfrage wurde verschickt.
| Anmeldung |
| CVJM Schwarzenbach/Saale |
| Frau Heike Hamann |
| +49 (0151) 420561962 |
| Zur Webseite |
| Anmeldung | Hausanschrift |
| CVJM Schwarzenbach/Saale | CVJM-Freizeitheim Schwarzenbach |
| Frau Heike Hamann | Seulbitzer Wald 1 |
| +49 (0151) 420561962 | 95126 Schwarzenbach an der Saale |
| Zur Webseite | |
Bitte teilen Sie dem Haus Ihre Belegungswünsche unverbindlich mit.
Bitte teilen Sie dem Haus Ihre Belegungswünsche unverbindlich mit.
Mit dem Absenden stimmen Sie den Datenschutzbestimmungen
von gruppenunterkuenfte.de zu.
Mit dem Absenden stimmen Sie den Datenschutzbestimmungen zu.
Passend zu Ihrer Suchanfrage für Häuser in der Nähe